- BUILDING PLOT
- PLANNING PERMISSION GRANTED
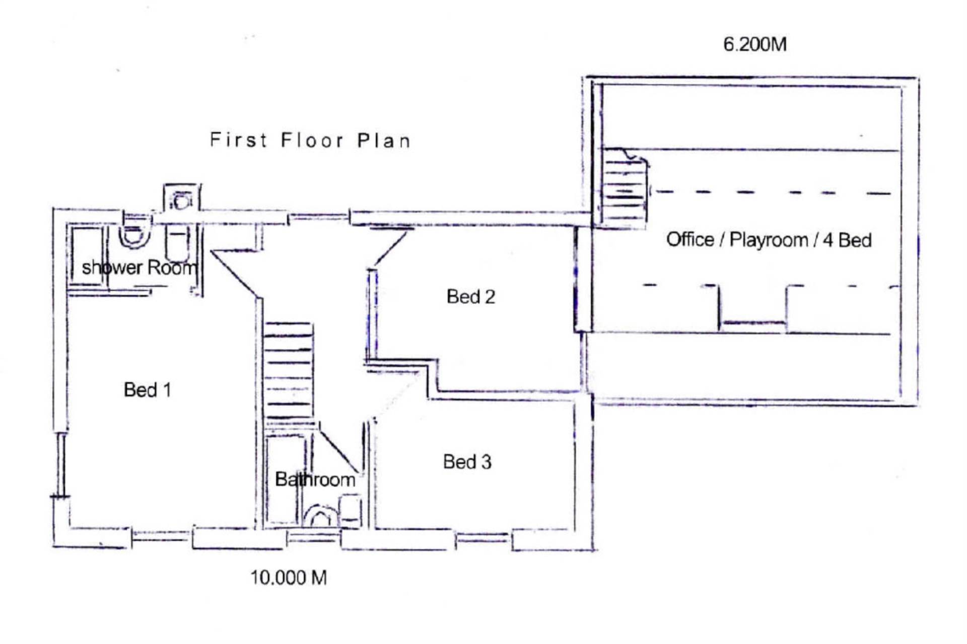
- Four bedroom detached house
- Situated in popular market town
- Close to amenities, schools & transport links
- Application Reference - 23/01679/APP
BUILDING PLOT - PLANNING CONSENT GRANTED - 1400 SQ FT DETACHED HOUSE
A building plot with planning permission granted for a 1400 sq ft detached family home located in the Buckinghamshire town of Winslow. The plot is situated on a quiet cul-de-sac and within easy reach the many amenities the town has to offer including shops, excellent schools and transport links.
PLEASE NOTE - The plot will remain on the market until Friday 30th May 2025 and all offers will need to submitted in writing with proof of funds prior to that date.
SERVICES & UTILITIES - All services are available in Mill Road. The foul sewer has been connected to the site already & the storm water has a pumping station on the adjacent green area that the property has consent to connect into.
TRANSPORT LINKS - The plot is situated within easy reach of the M1 & M40 that offer excellent link to London & Birmingham. The property also sits within half a mile of the new Winslow railway station (proposed to open in Summer 2025) that will offer links to Milton Keynes, Oxford & Bedford.
PLANNING APPLICATION REFERRANCE - 23/01679/APP
LINK TO APPLICATION & SUPPORTING DOCUMENTS (application reference required) - https://publicaccess.aylesburyvaledc.gov.uk/online-applications
Business Rates
Buckinghamshire Council, Exempt
Notice
Please note we have not tested any apparatus, fixtures, fittings, or services. Interested parties must undertake their own investigation into the working order of these items. All measurements are approximate and photographs provided for guidance only.
| Utility |
Supply Type |
| Electric |
Unknown |
| Gas |
Unknown |
| Water |
Unknown |
| Sewerage |
Unknown |
| Broadband |
Unknown |
| Telephone |
Unknown |
| Other Items |
Description |
| Heating |
Not Specified |
| Garden/Outside Space |
No |
| Parking |
No |
| Garage |
No |
| Broadband Coverage |
Highest Available Download Speed |
Highest Available Upload Speed |
| Standard |
18 Mbps |
1 Mbps |
| Superfast |
80 Mbps |
20 Mbps |
| Ultrafast |
1000 Mbps |
1000 Mbps |
| Mobile Coverage |
Indoor Voice |
Indoor Data |
Outdoor Voice |
Outdoor Data |
| EE |
Enhanced |
Enhanced |
Enhanced |
Enhanced |
| Three |
Enhanced |
Enhanced |
Enhanced |
Enhanced |
| O2 |
Enhanced |
Likely |
Enhanced |
Enhanced |
| Vodafone |
Likely |
Likely |
Enhanced |
Enhanced |
Broadband and Mobile coverage information supplied by Ofcom.